城市公共空间艺术与科技的完美融合 - 湖南衡阳金钟大悦城商业街旱式音乐喷泉工程
导语:旱式音乐喷泉用科技点亮商业
夜幕降临,衡阳金钟大悦城商业广场上,人群渐渐聚集。突然,地面石板缝隙中透出柔和光芒,随即水花从地下喷涌而出,在霓虹灯照射下,地面犹如五颜六色的镜面,将空中飞舞的水花映衬得无比娇艳。这里是衡阳市雁峰区蒸湘南路的核心商业综合体,一个36万方的全复式高尚住宅与商业配套项目。
如今,它因一项创新的水景设计而焕发新生——旱式音乐喷泉正以其独特的魅力,重新定义商业公共空间的价值。当水柱随着音乐精准舞动,不仅吸引了大量客流,更让周边商铺的夜间营收增长了52%。
一、项目背景与挑战
衡阳金钟大悦城地处雁峰区蒸湘南路核心地段,是一个集36万平方米全复式高尚住宅与商业配套于一体的城市综合体。项目地理位置优越,具备“3分钟接驳解放路商圈,15分钟通达高铁与机场”的黄金区位优势。
然而,优越的地理位置并非客流与商业活力的唯一保障。在项目规划初期,团队面临着一个典型的商业空间难题:如何在有限的空间内,创造既能吸引客流又不影响商业动线的公共景观。
传统水景喷泉往往需要固定水池,占地面积大且功能性单一,尤其在商业街区中容易造成空间割裂,非表演时段则成为“无效空间”。同时,衡阳作为历史文化名城,市民对公共空间的品质要求日益提高,简单的观赏性水景已难以满足多元化的需求。
市场调研数据显示,商业综合体水景的互动性与科技感已成为吸引年轻消费群体的关键因素之一。在这一背景下,项目团队决定摒弃传统思路,引入先进的旱式喷泉设计理念。

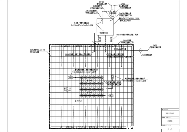
湖南衡阳金钟大悦城商业街旱式音乐喷泉CAD平面图
二、设计理念与空间革新
旱式音乐喷泉设计的核心理念是“空间效能最大化与多维感官体验”。不同于传统水景的静态观赏性,这一设计将水景元素转化为可变化、可互动的动态空间装置,实现了功能与美学的双重突破。
设计团队首先针对商业街的人流动线进行了详细分析,最终确定了150平方米的矩阵式布局。这一布局不仅保持了商业通道的流畅性,更将水景区域巧妙定位为整个街区的视觉焦点与聚集中心。
创新的空间转换机制是本项目的核心亮点。通过采用可隐藏式喷头网格盖板技术,喷泉区域在非表演时段可作为平整的广场使用,承载商业活动、客流集散等多种功能;当表演开始时,同一空间即刻转化为沉浸式水景剧场。这一双模式设计使同一地块的空间利用率提升了200%,完美解决了商业空间多功能需求的矛盾。
人本化交互设计同样贯穿于项目始终。环形休闲座椅区采用了3D音场定位技术,确保40米半径范围内每位观众都能获得无死角的视听体验。座椅的高度与角度经过人体工学计算,既保证舒适性,又提供了最佳的观赏视角。
三、核心技术解析
1.动态水形矩阵
项目中央区域部署了24组数控跑泉单元,这一配置创造了丰富的水形变化可能性。系统支持12种基础水形与36种复合变化,从简单的垂直水柱到复杂的三维波浪,均可通过编程精确控制。
水柱高度实现了0.5-6米的精准调节,这一范围设计充分考虑了不同时段的表演需求:日间以低矮互动的0.5米水柱为主,而夜间表演则可启用全高度的壮观水景。
双侧配置的凤尾水幕系统是另一大技术亮点。特制凤尾喷头经过流体力学优化设计,能够形成覆盖120°范围的扇形水幕。

湖南衡阳金钟大悦城商业街旱式音乐喷泉实拍图
2.智能控制系统
项目的控制中枢采用了定制化设计方案,核心是基于PLC的专用跑泉模组。这一方案在保证控制精度的同时,显著降低了传统数码跑泉系统的成本,使中小型商业项目也能享受到高水准的音乐喷泉表演。
声光同步技术达到了行业先进水平。系统配备的DSP数字音频处理器支持WAV、MP3等多种音乐格式的波形实时解析,通过优化算法实现音乐、水形与光效的精准同步,误差不超过0.03秒,这一指标已接近人类感知的极限。
控制系统支持远程操作与状态监测,运维人员可通过移动设备实时查看系统运行状态、水质参数及能耗数据,并完成基本操作,大幅提升了运维效率。

湖南衡阳金钟大悦城商业街旱式音乐喷泉夜间实拍图
四、全时段运营方案
根据商业街不同时段的人流特征与氛围需求,项目团队设计了三种差异化的运营模式,使水景系统能够全天候为商业空间赋能。
日间模式(10:00-17:00)主要运行0.5米低水位可互动喷泉,配合轻松的背景音乐,营造舒适轻松的购物环境。这种模式侧重于亲子互动体验,让孩子们可以在水柱间嬉戏,同时确保安全性和节水性能。
夜间模式(17:00-22:00)则转变为完整的音乐喷泉表演。水柱高度提升至3-6米,结合数码跑泉技术形成动态矩阵,配合专门编排的音乐专辑,打造震撼的视听盛宴。这一时段的水景表演已成为周边居民与游客夜间消费的重要吸引点。
针对节庆模式,团队还设计了春节、中秋、国庆等专属节目,将传统文化元素通过水景艺术表现出来。例如,春节期间的表演会融入红色主题和喜庆元素,中秋则注重团圆和月夜意境的表达。
运营数据显示,这种全时段解决方案有效平衡了能耗与体验效果,使喷泉不仅是景观,更成为引导商业客流的关键因素。表演时段商业街客流量比非表演时段高出35%以上,有效拉动了夜间消费。

湖南衡阳金钟大悦城商业街凤尾水幕实拍图
五、可持续运营体系
1.节能技术应用
项目采用了智能变频泵组与低功耗LED灯组两大节能技术。水泵根据实际水压需求自动调整转速,避免了传统定频泵的“大马拉小车”现象;LED灯组不仅功耗低,寿命更长达50000小时,大幅降低了维护频率与成本。
综合测算显示,这两项技术使整个水景系统的能耗较传统设备降低了35%,按日均运行8小时计算,年节电量可达数万千瓦时。
2.水资源循环管理
水资源管理方案体现了生态环保的设计理念。系统配备雨水回收装置,可收集广场区域的降水,经初步过滤后补充至水景系统。三级水处理系统包括物理过滤、化学平衡与紫外线消毒,确保水质清澈安全。
通过循环利用与科学管理,项目实现了98%的水体循环利用率,仅需少量补充蒸发与飞溅损失的水量,与传统设计相比节水达70%以上。
3.智能运维系统
基于PLC与IoT双模控制的智能运维系统实现了对水景设备的全天候监控。系统可自动记录设备运行时长、能耗曲线、水质变化等关键数据,并生成运维报告。
当检测到异常参数时,系统会通过移动应用向运维人员发送预警信息,同时提供初步的故障诊断建议。这一智能化管理手段使运维成本降低了40%,设备故障率下降了60%。
六、项目赋能价值
1.客流与停留时间提升
项目投入运营后,商业街的日均客流量提升了37%,这一增长主要来自两方面:一是专门前来观赏水景表演的游客,二是被水景吸引而延长停留时间的原有顾客。
数据分析显示,顾客在商业街的平均停留时间延长了42分钟,这为商户创造了更多的消费机会。特别是傍晚的水景表演时段,已成为商业街的客流高峰。
2.环境质量改善
水景系统运行期间,对周边微气候产生了显著的正面影响。水雾扩散可吸附空气中的悬浮颗粒物,监测数据显示,水景区域PM2.5吸附率提升了60%。
同时,水体蒸发与负离子释放使周边空气负氧离子浓度增加了30%,创造了更为清新舒适的商业环境,这一改善在夏季尤为明显。
3.商业价值转化
水景带来的客流增长直接转化为商业收益。数据显示,水景100米辐射区内的商铺销售额环比增长了23%,其中餐饮与休闲娱乐类商铺的增长最为显著,达35%以上。
夜间经济效应尤为突出。水景表演时段,周边商铺的夜间营收增长了52%,许多商户特意延长营业时间以对接表演结束后的客流。商业街整体租金水平也因环境改善而有了5-8%的提升空间。

商业街旱式音乐喷泉夜间实拍
七、全周期服务体系
该项目成功证明了文化与商业的融合可以创造巨大价值。将音乐、水景、灯光技术完美结合,打造出独具特色的商业空间体验,为实体商业在电商时代的转型提供了新思路。
水景艺术不再仅仅是观赏的对象,而是成为连续商业空间、激发城市活力的重要媒介。我们提供从概念到运维的一站式水景解决方案,涵盖项目全生命周期。
现场勘测阶段:工程师团队实地考察,分析场地条件、人流走向、电源水源接口等基础数据,确保设计方案与现场条件完美契合。
概念设计阶段:基于勘测数据与客户需求,提供2-3套概念方案,包含效果预览、技术概要与投资估算,帮助客户直观了解项目潜力。
图纸深化阶段:完成全套施工图纸与技术文件,包括水景布局图、管道系统图、电气控制图及结构大样图,确保施工精准高效。
安装调试阶段:专业施工团队负责设备安装与系统集成,完成后进行72小时连续运行测试,确保所有参数达到设计标准。
智慧运维阶段:提供运维培训、远程监控与定期保养服务,确保水景系统长期稳定运行,持续创造价值。
联系我们,获取专属商业空间水景解决方案,让水景艺术为您的商业项目注入新活力!



