五星级酒店如何通过音乐喷泉打造沉浸式水景体验? - 四川成都棠棣东方酒店音乐喷泉深化设计方案
一、背景分析:文旅融合趋势下的酒店景观升级
成都棠棣东方酒店是由成都兴洲世纪酒店有限责任公司投资3亿元打造的综合型豪华酒店,位于成都市双流区牧华路二段与黄甲大道交叉口,毗邻双流国际机场及天府新区核心商圈。作为区域内稀缺的五星级定位酒店,其目标客群以中高端商务接待、宴会庆典为主,年均承接婚宴、企业年会等大型活动超300场。
行业痛点与需求
周边竞品酒店已布局水景设施,需通过差异化设计提升核心竞争力
酒店主入口景观缺乏视觉焦点,难以匹配五星级定位
现有屋顶露台利用率低,需通过水景设计激活空间价值

二、设计理念:科技赋能+文化表达+生态友好
以“流动的东方韵律”为核心,融合川蜀文化元素与数字技术,通过“声-光-水”三位一体的艺术表达,打造可感知、可交互的沉浸式水景空间。
场景多元化
采用DMX512智能控制系统结合宴会、休闲场景定制水景互动模式
视觉地标化
以“蜀水润城”为概念,通过动态水景强化酒店标识性
技术节能化
采用循环水处理系统及智能控制系统实现节水节能

三、设计内容与技术深化
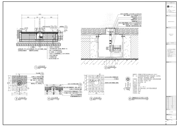
主入口音乐喷泉(核心亮点)
水型组合:60组数码跑泉阵列,通过DMX512潜水泵实现精准时序控制,支持《茉莉花》《蜀绣》等定制化音乐编程
灯光系统:搭配DMX512中孔LED灯,色温可调范围2700K-6500K,与喷泉水柱形成动态光影组合

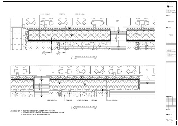
副入口水景喷泉(氛围营造)
涌泉+跌水组合:40组涌泉采用304不锈钢环形喷头,单柱喷射高度0.8-1.2m,配合花岗岩跌水台形成多层次水幕
昼夜双模式:日间静水面倒映建筑立面,增强空间纵深感+夜间2700K暖光营造“水月相映”意境

屋顶镜面水景(空间激活)
镜面水景:采用5mm超白玻璃打造120㎡镜面水池,搭配低功率潜水泵组,实现“无波涟漪”视觉效果
创新设计:隐藏式排水槽设计,确保水面平整度误差≤2mm

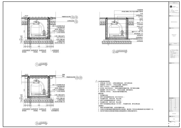
循环水处理系统(技术保障)
三级过滤:石英砂过滤+活性炭吸附+紫外线消毒,水质达到《CJJT 222-2015》A类标准
智能补水:采用浮球阀与电磁阀联动控制,水位误差≤±2cm

电气与控制系统(安全合规)
配电方案:独立设计喷泉专用配电柜(IP65防护等级),设置漏电保护与IP68防水接线盒
远程运维:接入酒店BA系统,支持手机端远程调控水型、灯光及音乐组合

四、常见问题解答(FAQ)
Q:音乐喷泉如何实现与宴会氛围的联动?
A:通过DMX512控制系统预设“婚礼模式”“庆典模式”等6种场景,司仪可通过平板电脑一键切换水型与灯光。
Q:水景设备维护需要注意哪些要点?
A:建议每月检测潜水泵轴承温度(应<65℃),每季度清洗石英砂过滤器。
Q:音乐喷泉深化设计包含哪些核心内容?
A:涵盖土建条件复核、设备参数校核、管网水力计算、控制系统对接、施工图纸深化等12项专业服务,确保施工图与现场条件零误差。

五、行业趋势
据2025年《中国水景工程白皮书》显示,85%的五星级酒店将水景喷泉纳入改造计划。
如需获取:
✅ 星级酒店水景设计标准PDF
✅ 音乐喷泉投资回报测算表
✅ 20+国内酒店水景案例集


