成都高端售楼处如何用钢丝水帘提升商业价值? - 华润置地十陵项目深化设计方案
一、项目背景:高端定位与空间痛点
华润置地(成都)有限公司十陵项目定位城市高端人居标杆,需通过差异化水景强化“自然美学与科技融合”的品牌基因。设计方原效果图中,钢丝水帘作为主入口视觉焦点,需实现三大核心诉求:
静音体验
避免传统水帘噪音干扰洽谈区(≤45dB)
空间通透
以“水幕分隔”替代实体隔断,保持售楼处开阔视野
稳定运行
适应售楼处超长运行场景,解决钢丝易腐蚀、水花飞溅问题

成都华润置地十陵售楼处钢丝水帘效果图
二、深化设计:技术精准适配场景需求
注:所有技术方案均基于设计方原始效果图实现工程落地转化
隐形管道系统预埋方案
采用φ76*2.0不锈钢管道作为主供水管路(抗压强度≥1.6MPa)
预埋深度精确至建筑完成面下15cm,规避后期铺装破坏风险
环形管网结构设计(水力平衡布局) ,确保末端水压差≤0.05MPa

成都华润置地十陵售楼处水帘管道系统图
水池铺装与设备集成方案
| 子系统 | 技术要点 | 解决痛点 |
| 铺装开孔 | 激光切割开孔+橡胶密封环 | 避免石材崩边、渗水 |
| 水帘线安装 | 304不锈钢承重索+防抖动装置 | 保障水流垂直线性 |
| 灯光系统 | 24V低压LED+IP68防护 | 消除眩光、降低能耗 |
| 检修通道 | 隐藏式活动检修盖板 | 降低后期维护成本 |

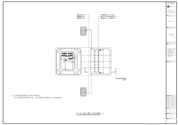
成都华润置地十陵售楼处水帘水池铺装CAD尺寸图
设备系统集成
三级水处理:砂缸过滤→UV灭菌→精密滤网(80目),确保水体透明度
恒压动力模块:变频水泵组(扬程17m,流量25m³/h)实现±5%流量波动控制
钢丝水帘系统:底部配重+微调装置保障水流垂直线性,1.5mm钢丝绳+0.5mm涂塑层避免钢丝腐蚀风险

成都华润置地十陵售楼处洽谈区水帘设备CAD剖面图
三、施工核心难点与解决方案
难点1:钢丝水帘的静音与防溅控制
解决方案:
采用“五级降噪”结构:顶部水箱消音棉+水流缓冲导流板+底座减震垫片(消除80%水流噪音)
水箱内设置液位传感器,联动控制系统,维持水压
钢丝末端加装重力稳流器,使水流呈层流状下落,飞溅率降低70%

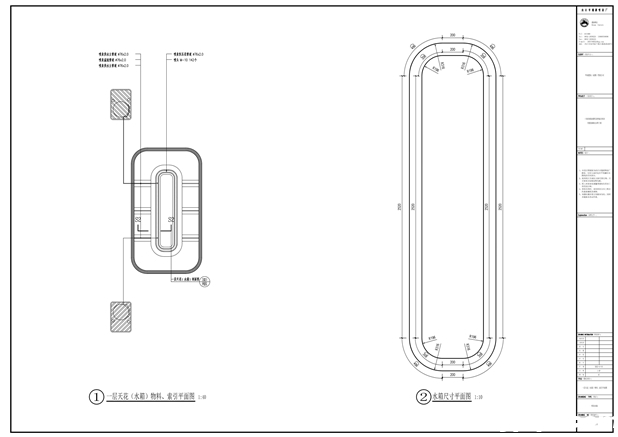
成都华润置地十陵售楼处接待前厅水帘设备CAD平面图
难点2:高精度安装与后期维护
解决方案:
采用激光定位仪校准,水帘线垂直度误差≤0.5mm/米
快拆式单元,每50根钢丝组成独立模块,支持单组更换(维护成本降低70%)
设置检修通道(宽度≥600mm),便于钢丝更换与灯光维护
数据支撑:经现场测试,运行噪音稳定在42dB(距水帘5米处),低于洽谈区环境音标准

成都华润置地十陵售楼处洽谈区水帘设备CAD平面图
四、成效总结:数据化验证设计目标
| 指标 | 达成效果 | 客户反馈 |
| 静音性能 | ≤45dB(实测42dB) | “无感知水景”提升洽谈体验 |
| 空间通透性 | 视野遮挡率<8% | 成功替代实体隔断 |
| 运维成本 | 年维护费用<1.2万元 | 模块化设计降低更换成本 |
| 客户体验 | 到访停留时长增加23% | “自然灵动感”为楼盘TOP3记忆点 |

成都华润置地十陵售楼处洽谈区水帘效果图
FAQ:高频技术问答
Q:钢丝寿命如何保障?
A:316不锈钢钢丝+涂塑层保护,理论寿命>10年;配合水质过滤系统,实际损耗率<5%/年。
Q:钢丝水帘日常维护是否复杂?
A:采用自清洁过滤系统,仅需季度检查水泵,年维护成本低于普通喷泉30%。

成都华润置地十陵售楼处接待前厅水帘效果图
结语:以水为幕,重塑空间边界
本工程印证了定制化水景对高端商业空间的溢价能力。华润十陵项目通过钢丝水帘技术,将售楼处转化为“沉浸式体验展厅”,助推首开去化率达92%。
免费获取方案:提供同类项目《钢丝水帘技术白皮书》+定制化设计工具包
点击链接预约专家咨询 → [预约工程师获取免费深化设计咨询]


