西南专业喷泉设计 - 水景喷泉方案定制
德源喷泉核心优势:
技术实力认证:
中国建筑金属结构协会喷泉水景委员会乙壹级资质,西南地区领先的喷泉水景艺术服务商。
深耕行业十余年:
注册资金500万元,服务涵盖市政广场、商业综合体、文旅景区、住宅社区、工业园区等全场景。
200+标杆案例:
四川遂宁东湖城市舞台水舞秀、老挝万象世界贸易中心音乐喷泉、贵州遵义马鬃茶园光亮及音乐喷泉等大小类型。
(点击查看更多设计案例、施工案例、维修/更新/升级案例)
设计师团队:
水景喷泉设计专家团队,平均从业年限超过8年,从事设计领域超过12年,擅长各类专业设计软件,覆盖水景喷泉设计全流程。
施工图深化设计:
AutoCAD(喷泉基础结构设计/管线布局设计/电气系统设计)
效果图设计制作:
SketchUp(三维场景搭建)+Lumion(实时水体质感模拟)+Photoshop(光影效果增强)
三维动画设计制作:
3ds Max(水柱轨迹模拟)+Maya Fluids(大型水秀动态预演)
全过程服务流程:
九大环节严控质量,从沟通到维保全程覆盖
一、需求沟通:
专属设计师团队提供全程定制化服务,通过专业调研工具深入分析:使用场景定位、潜在需求解析、预算范围评估、艺术风格匹配等,确保设计方向与客户期望高度一致。
二、现场勘测:
专业技术团队实地考察并完成:地形尺寸测量、基础设施核查(电力、给水、排水、溢水等)、环境要素分析(环境特征、人文符号等)等,建立数字化地理模型并制定初步设计建议。
三、方案定制:
概念设计:提供多套创意设计方案、交付专业PPT方案报告等。
深化设计:3D可视化建模、水景喷泉效果表现图、灯光效果模拟等。
体验模拟:三维演示动画、模拟实际使用场景、沉浸式体验展示等。
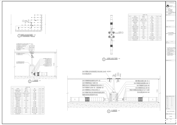
四、施工图确认:
提供完整施工图纸,包含:平面图、立面图、剖面图、详图、电气图、详细技术参数标注等,确保设计与施工无缝衔接。
五、土建指导:
提供专业指导意见:土建技术交底、施工注意事项、常见问题解决方案、管道预埋技术指导等并进行全过程跟踪服务。
六、工厂模块化生产:
采用先进的模块化生产技术:超80%设备工厂预制、提高产品精度、缩短现场施工周期、严格把控质量检验流程。
七、现场安装调试:
标准化安装流程:专业施工团队、水循环系统测试、灯光效果调试、自动化控制系统校准等。
八、压力测试:
系统全面测试,包含:性能指标评估、使用体验反馈、问题优化调整等。
九、维保服务:
超长质保服务、定期回访维护、维护保养建议、建立长期服务档案、终身响应维护服务等。
服务覆盖区域:
深耕西南地域:
四川、重庆、云南、贵州四小时快速响应服务圈,确保高效优质的技术支持。
辐射全国市场:
覆盖西藏、湖南、湖北、陕西、广西等20+省份丰富项目经验,满足不同区域客户需求。
拓展海外业务:
与东南亚多个国家建立合作关系,彰显专业实力与国际化视野,致力于为全球客户提供卓越的水景喷泉解决方案。
立即致电13668358696获取免费技术指导+现场勘测+清单报价+设计方案
设计方案赏析





上一篇:没有了



