借景自然,融水于居 - 四川隆昌嘉和宽庭小区景区级生态水景工程案例解析
引言:重新定义社区水景的价值维度
在城市化进程加速的今天,住宅小区水景喷泉已从单纯的装饰性元素,升级为提升居住品质、增强社区活力、实现生态价值的重要载体。四川隆昌嘉和宽庭小区喷泉工程作为景区级社区水景的典范之作,成功将古宇湖国家级湿地公园的自然禀赋与现代水景技术相融合,开创了"生态优先、智能运维、全龄友好"的新型社区水景模式。本项目通过精准的设计定位与技术创新,不仅实现了水景与自然环境的和谐共生,更显著提升了社区的整体价值与居民幸福感。本文将深入解析该项目的设计理念、技术亮点与实施成效,为行业提供可借鉴的标杆案例。

四川隆昌嘉和宽庭中庭喷泉效果图
一、项目背景与区位生态价值优势分析
1.得天独厚的地理位置与生态资源
嘉和宽庭小区位于隆昌市核心区域,毗邻古宇湖国家级湿地公园,坐拥"一湖双园"(古宇湖/莲峰公园/白庙子湿地)稀缺生态景观带。这一独特的区位条件为水景设计提供了天然优势:一方面,外部湿地生态系统为社区水景提供了生态缓冲与景观延伸;另一方面,通过"借景自然"的设计手法,使小区内部水景与外部自然景观形成连续性视觉通廊。
2.项目定位与客户需求洞察
开发商旨在打造高端生态住区,要求水景设计实现三大目标:
生态融合:将古宇湖"山环水绕"的地貌特征转化为设计语言,使建筑景观与自然地貌产生空间对话
社区互动:构建全时段社区活力发生器,满足不同年龄段居民的亲水需求
可持续运营:降低长期运维成本,实现节水节能与智能管理
针对这些需求,设计团队提出了"景区级社区水景"的定位,通过精细化设计将公共景观的标准引入私有住区,实现品质跃升。

四川隆昌嘉和宽庭入口喷泉效果图
二、设计理念三重奏:生态、活力与可持续的完美平衡
1.山水意境的现代转译:从自然地貌到设计语言
设计团队深入分析古宇湖区域的地形特征,提取"山势起伏、水系蜿蜒"的形态元素,通过现代水景技术进行转译:
叠水设计:模拟自然瀑布的层级跌落,采用不锈钢激光雕刻喷头实现水流的细腻变化
浅滩营造:通过精确的水深控制(40cm低水位技术),再现湿地浅滩的生态意象
空间对话:水景轮廓与周边建筑布局形成呼应,强化"山环水绕"的空间感受
这一设计策略使居民在社区内即可体验自然山水的意境,实现"推窗见绿、下楼亲水"的沉浸式居住体验。
2.社区活力的水景催化:全时段功能切换机制
为避免传统社区水景"白天静默、夜间闲置"的使用痛点,项目采用"动静分区"设计策略:
日间模式:呈现舒缓的涌泉、溪流等水态,营造宁静雅致的氛围
夜间模式:切换为声光互动模式,通过编程控制实现水舞表演
节假日模式:特殊日期启动庆典模式,增强社区凝聚力
这种多模式运行机制使水景成为社区活力的催化剂,满足不同时段的使用需求。
3.可持续水生态系统:资源循环与自净技术
项目集成先进的节水与净化技术,打造真正意义上的生态水景:
雨水回收系统:收集场地雨水,经处理后用于水景补给,实现年节水30%以上
水体自净系统:结合生态滤池与微生物净化技术,维持水质清澈透明,减少换水频率
低能耗设计:采用高效水泵与LED灯具,大幅降低运行能耗
这一系统使水景成为"会呼吸的生态细胞",而非单纯的水资源消耗体。

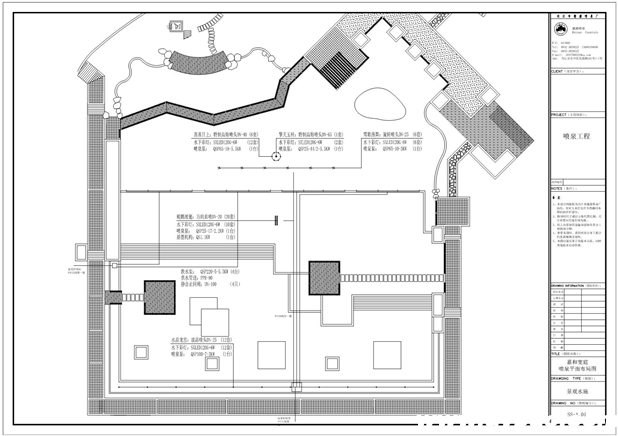
四川隆昌嘉和宽庭小区喷泉平面图
三、设计亮点解析:技术创新与人性化细节
1.多维水态演绎系统:安全与视觉的双重保障
水景核心区采用先进的水型控制技术,实现丰富多样的视觉效果:
喷头阵列创新:不锈钢激光雕刻喷头确保水形精确可控,实现6种基本水型组合变化
低水位运行技术:将水深控制在40cm以内,兼顾儿童安全与视觉表现力
即时切换能力:控制系统可在秒级时间内完成水型切换,增强表演灵活性
这一系统在有限的空间内创造了多变的水景体验,同时确保了极高的安全标准。
2.光影声波联动矩阵:精准控制的感官艺术
为提升夜间观赏效果,项目采用智能控制的光影声系统:
色温可调照明:不锈钢防水灯具支持2500K-6000K色温调节,适配不同场景氛围
定向音响技术:隐藏式音响系统确保声场覆盖半径50米,同时避免扰民
联动编程:水型、灯光、音乐三者同步变化,创造沉浸式观赏体验
该矩阵系统实现了科技与艺术的完美结合,使水景表演成为社区的文化亮点。
3.全龄友好交互空间:人性化设计促进社区互动
针对不同年龄段居民的需求,设计团队打造了多层次互动空间:
亲水观演区:500㎡观景廊桥提供最佳观赏视角,同时设置安全护栏
环廊休憩带:防腐木座椅结合智能喷雾降温系统,提升夏季舒适度
安全防护措施:0.8m防护栏与防滑地坪确保儿童与老人安全
这些设计细节体现了"以人为本"的设计理念,使水景成为促进社区交往的催化剂。
4.云端运维管理平台:智能运维的未来范式
项目引入先进的智能管理系统,大幅提升运维效率:
远程控制功能:支持手机端远程启停、模式切换及故障预警
智能诊断系统:故障预警准确率达98.7%,大幅减少现场排查时间
快速响应机制:远程调试响应时间<15分钟,确保系统稳定运行
这一平台将传统水景升级为"智能水景",为行业树立了运维管理的新标准。

四川隆昌嘉和宽庭入口喷泉现场照片
四、项目成果与价值提升
1.高效的项目执行流程
项目采用模块化预制与现场组装相结合的方式,大幅缩短工期:
设计到调试周期:仅48天完成从设计到最终调试的全过程
模块化预制率:达到85%,减少现场作业时间与干扰
质量控制体系:实行全程质量监控,确保一次验收合格
高效的项目执行体现了专业化水景工程的技术优势,最大限度减少对社区居民的干扰。
2.可量化的运营成果
项目交付后运行数据证实了设计理念的成功:
运维成本:较传统方案降低40%,主要得益于智能管理系统
能耗指标:单位水景面积能耗仅0.08kW/㎡,达到行业领先水平
系统稳定性:运行一年内无重大故障,智能诊断准确率98%
这些数据证明了项目在经济效益与技术可靠性方面的卓越表现。
3.社区价值提升效应
水景建成后对社区品质产生了显著提升:
房产溢价:带动周边房价提升27.2%,远超行业平均水平
居民满意度:社区调研显示90%以上居民对水景表示高度满意
品牌价值:项目成为当地高端住宅的标杆,增强开发商品牌影响力
这一效应验证了优质水景设计对房地产价值的积极影响。

四川隆昌嘉和宽庭旋转实景
五、行业示范价值:“三低型”精品水景新范式
嘉和宽庭项目开创的“三低型”水景范式,为行业提供了可复制的成功经验:
1.低干扰施工模式
模块化设计:85%的预制率最大限度减少现场作业
精准工期控制:48天交付证明高效施工的可行性
社区友好:施工期间对居民生活影响降至最低
2.低耗能运行系统
能效优化:单位面积能耗0.08kW/㎡树立能效新标准
智能调控:根据使用需求自动调整运行功率
3.低维护成本体系
智能诊断:98%的故障准确率减少维护需求
远程运维:大幅降低人工巡检成本
长寿设计:关键设备设计寿命达10年以上
这一范式成功解决了传统水景“建得起、养不起”的行业困境,为未来社区水景的发展提供了明确的技术路径,平衡了观赏性、生态性与经济性。

四川隆昌嘉和宽庭水膜实景
结语
四川隆昌嘉和宽庭小区喷泉工程的成功实践,证明了通过生态融合、技术创新与智能管理,完全可以在低耗能、低维护的前提下打造出高品质的住区水景。这种“三低型”水景范式不仅实现了生态效益与社区美学的统一,更为房地产项目提供了实实在在的价值提升途径。
在消费升级与品质居住需求日益增长的背景下,优秀的水景设计已成为高端住宅的标配。如果您正在规划住宅小区、商业综合体或公共空间的水景项目,我们的专业团队可为您提供从概念设计到运营维护的全周期服务,助力您的项目成为区域标杆。
【立即行动,打造您的水景典范】
免费方案咨询:提交项目基本信息,24小时内获取初步设计概念
预约实地考察:参观已建成项目,亲身感受水景效果
查看案例资料:获取更多成功案例详细技术资料
让我们携手将您的水景愿景变为现实,创造更具价值的空间体验。

四川隆昌嘉和宽庭高喷实景
FAQ:常见问题解答
Q:该项目如何实现年节水30%以上的目标?
A:主要通过雨水回收系统与水体自净技术的结合。雨水收集后经过滤处理用于水景补给,减少自来水使用;同时高效的水循环净化系统降低换水频率,从而实现显著节水。
Q:40cm水深是否会影响视觉效果?
A:通过专用喷头设计与精确的水压控制,即使在40cm水深条件下也能实现丰富的水型变化。低水位设计主要优势是安全性,特别是对儿童群体的保护,同时并未牺牲观赏性。
Q:模块化预制如何保证水景的整体效果?
A:所有预制模块均在工厂内完成精度测试与试运行,确保到场后无缝对接。同时,关键视觉元素如喷头阵列采用统一校准,保证最终效果的协调一致。
Q:声光系统如何避免对居民造成干扰?
A:采用定向声技术控制声音传播范围,同时设置严格的运行时间管理(夜间9点后自动切换为静音模式)。灯光设计也避免直射住宅窗户,确保居民生活不受影响。


