政务空间形象升级与生态节能实践典范 - 云南凤庆水利局瀑布流水墙及亮化工程
项目背景:政务形象升级与生态需求的双重突破
凤庆县作为滇西南重要水利枢纽,承担着清水河灌区(设计灌溉面积5.04万亩)、前锋水库(年供水量145万立方米)等重大水利工程运维任务。在推进水利基础设施现代化的进程中,水利局亟需解决两大痛点:
形象升级需求
传统办公楼缺乏水文化展示载体,与“世界滇红之乡”的生态定位存在落差
功能优化需求
临街办公区受交通噪音干扰(实测68dB),且休憩区夏季热岛效应显著,影响员工工作效率与访客体验
设计亮点:自然基因与智能内核的融合
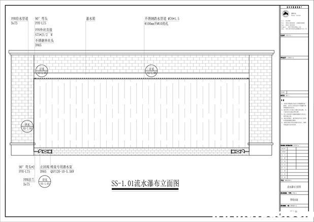
瀑布流水墙系统——模拟自然,超越自然
自然瀑布形态:13.5米宽幅水幕墙通过三级错层导流技术,实现15mm至5mm渐变水膜厚度设计
静音降噪设计:水幕墙底部配置消能槽结构,形成薄雾漫延效果,有效降低流水噪音至45dB以下
循环节水技术:循环水系统集成5μm精度过滤器与雨水回收系统,水资源利用率提升40%
智能亮化系统——光影叙事与节能管控
灯光场景化设计:2700K暖光水下灯突显水流质感,联动RGBW地埋灯,与建筑玻璃幕墙形成光影互动
能耗可视化:PLC控制系统实时监测120个照明单元,LED光源每小时总能耗仅1.1kW

技术落地:空间限制的破局之道
在58米窄幅场地中,施工团队运用三大策略:
垂直分层
通过镜面不锈钢背板反射延伸视觉景深
模块化装配
预制18组喷泉设备组件,现场安装周期缩短至5天
隐形安全防护
地埋灯同步承担区域边界警示功能,减少独立围栏设施

项目成效:从数据看价值提升
竣工三个月后跟踪评估显示:
单位形象认知度提升75%(基于当地媒体曝光量与访客调研)
员工户外休憩时长增加2.3倍(通过智能感应系统统计)
年运维成本降低28%(对比传统喷泉能耗数据)
政务空间水景设计的关键启示
功能融合策略
将水景的降噪、降温功能与视觉表现结合,例如在第三级瀑布设置雾化系统调节微气候
文化表达技巧
通过水流形态变化隐喻水利工作的动静平衡哲学
可持续运维方案
采用变频节能技术与LED光源,契合政府单位节能减排要求

常见问题解答
Q:政府项目如何控制水景工程预算?
A:建议采用模块化设计,如本项目通过预制不锈钢水箱减少土建成本,同时选择IP68防护等级的国产灯具降低维护支出。
Q:高落差瀑布如何保证运行安全?
A:需重点把控三点:循环水泵设置双重漏电保护装置、水池边缘设置防滑花岗岩层、每日启动前需检查水位。


