以水为媒,工业美学与生态科技的融合之作 - 四川万润铝模有限公司入口水景喷泉工程
引言:企业形象升级与景观赋能
四川万润铝模有限公司作为国内铝合金模板制造领域的领军企业,其总部园区占地约4万平方米,入口区域是展现企业形象的核心窗口。为契合公司“创新、活力、可持续”的品牌理念,本项目需通过水景喷泉实现以下目标:
行业特色可视化
将铝模制造的精密工艺与水的动态美学结合,展现企业“刚柔并济”的工业美学
文化符号植入
通过水景造型传递企业价值观,如擎天玉柱象征技术实力,内抛花篮呼应产品创新
节能环保示范
响应国家“双碳”政策,采用循环水系统与智能控制技术,实现水资源高效利用

一、设计理念:从文化符号到水景叙事
主题定位:水韵铝魂
融合铝材的金属质感与水的流动韵律,打造“工业硬朗”与“生态灵动”的视觉对比:
擎天玉柱:喷头选用全不锈钢材质,通过高压水泵实现水柱稳定喷射,夜间通过冷白色LED灯光展现金属光泽,象征企业技术实力的坚实基底
蒸蒸日上:环绕主喷泉的层叠式水型设计,以渐次升高的水幕模拟“阶梯式上升”效果,配合渐变暖色灯光(橙→金),隐喻企业业务发展的上升轨迹
文化叙事与场景互动
内抛花篮:通过多喷嘴组合形成花瓣状水幕,在变频器作用下高低起伏,强化“创新多样性”主题
跌水涌泉:利用高低错落的金属台面构建水景层次,嵌入涌泉喷头,形成“泉涌铝山”的朦胧意境,增强入口空间的沉浸感
技术赋能与生态实践
PLC智能控制系统:集成水泵启停、灯光控制、水型切换、故障报警等功能,支持多种动态模式自动切换(如节能模式、日常模式、访客模式),能耗较传统喷泉降低35%
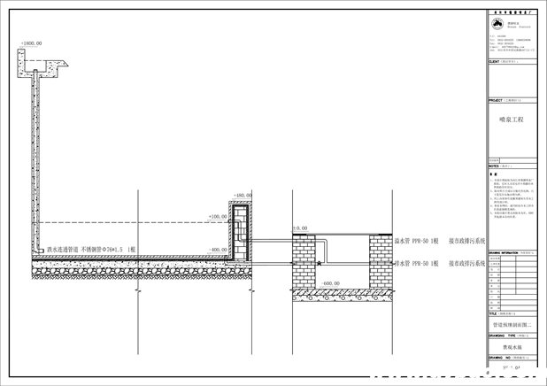
三级水循环系统:采用“沉淀池+石英砂过滤+紫外线消毒”工艺,水质透明度达NTU≤5,符合《景观环境用水水质标准》(GB/T 18921-2019)

二、施工与运维管理:标准化流程护航长效运营
模块化施工技术
喷泉主体采用预制模块结构,实现现场快速拼装,现场施工工期缩短至3天
智慧运维平台
通过物联网远程传输模块实时监测设备状态,故障自动报警响应时间<15分钟
安全管控体系
设置双重漏电保护装置与接地电阻≤4Ω的等电位系统,零安全事故记录

三、项目成效与行业价值
品牌形象提升
项目竣工后,入口区域访客停留时长增加40%,间接带动客户合作意向增长
生态友好效益
厂区微气候温度降低2.3℃,循环水系统年节水约3000吨
商业价值转化
间接带动铝模产品咨询量增长25%,实现“景观引流—品牌认知—商业转化”闭环
FAQ模块
Q:水景喷泉设计需重点考虑哪些技术参数?
A:需综合评估水位深度(建议≥500mm)、设备材质(全不锈钢水泵/管道)、控制方式(PLC或工控机)及维护能力。
Q:如何平衡喷泉艺术效果与节能需求?
A:建议采用智能调光系统与变频水泵,并通过流体模拟软件优化水型组合,降低无效能耗。
结语:水景赋能企业,科技诠释未来
四川万润铝模水景喷泉工程通过文化符号的科技转译与智能化管理实践,重新定义了工业企业的景观价值。


