如何用循环水景激活小区景观价值? - 四川隆昌隆城观邸小区水景喷泉深化设计方案
一、背景分析:城市更新与品质居住的共生需求
隆昌市作为“中国石牌坊之乡”,近年来以“公园城市”建设为核心,推动生态与城市空间的深度融合。隆城观邸小区位于城市核心区,面临两大挑战:
生态敏感区开发平衡
需符合“城市双修”政策要求,兼顾湿地保护与居住品质提升
市场竞争差异化
川南城市群高端住宅竞争激烈,需通过水景设计塑造“生态艺术住区”标签

二、设计目标及理念:多维价值重构
生态维度
采用闭式循环系统,实现年节水32.7%
雨水回收与水体自净技术结合,降低对外部水源依赖
文化维度
提取隆昌古宇湖“山环水绕”地貌特征,打造地域IP
将隆昌牌坊群“层叠”元素融入跌水造型,增强社区文化认同感
技术维度
5G物联网智能控制系统,支持手机端远程启停、模式切换及故障预警
配置日出、正午、夜间三套光影模式适配不同时段
三、设计内容:全场景水景生态链构建
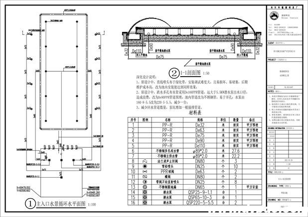
主入口水景:双循环动态水剧场
动态循环:上下两层喷泉水池通过抛物线喷头实现水力交互,水流从下级水池精准射入上级水池,边缘跌水形成“喷射-跌落-回流”的闭环水循环
结构设计:跌水堰口精度控制±1mm,确保水膜均匀度

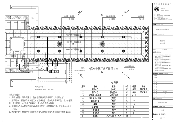
中庭水景:全龄友好交互空间
蒲公英喷泉:高1.5米蒲公英喷泉,由41根30cm支管组成,顶部形成直径0.8m的伞状水膜
涌泉及跌水:日间呈现舒缓涌泉水态,夜间搭配RGBW四色LED灯,营造“声光剧场”

中庭溪流:生态美学走廊
溪流设计:蜿蜒长度128m,水流设计速度0.3m/s,既呈现粼粼波光又避免水花飞溅
光影协同:溪流底部铺设蓝黑双色鹅卵石,间隔嵌入防水LED地埋灯(色温2700K-6000K可调),夜间形成“星河溪径”效果

四、技术细节:全周期精准管控
深化设计
基于甲方意向图纸,完成喷泉管道预埋、机电系统图、灯光布线图等CAD施工方案,确保模块化装配精度
智能运维
云端管理平台实时监测水质、设备状态,故障预警准确率98.7%,响应时间<15分钟;
电气安全
配电箱配置漏电保护+过载保护双模块,电缆敷设深度≥40cm
FAQ模块
Q:循环水系统如何防止藻类滋生?
A:通过石英砂过滤+紫外线消毒双重保障,配合自动加药系统(次氯酸钠浓度0.3-0.5ppm)。
Q:小区喷泉如何控制维护成本?
A:建议采用三级过滤系统+智能监测装置,可降低50%以上的人工巡检频率。
Q:水景设计需要哪些专业图纸?
A:必须包含管道综合图、设备安装大样图、电气系统图三大核心图纸。



