非遗地标的水景重生与智慧升级 - 四川自贡彩灯博物馆水景喷泉修复工程
导语:
国家级非遗地标遇上喷泉瘫痪?年客流量超300万的自贡彩灯博物馆,其门面担当——正门广场喷泉竟沦为“死水潭”!这不仅拉低颜值,更影响游客体验。如何用一场精准的“微改造”,让水景重焕生机,并与“天下第一灯”完美融合,带动区域夜经济飙升25%?这个经典案例值得所有文旅项目方参考!

自贡彩灯博物馆水景喷泉鸟瞰效果图
一、项目背景:当“天下第一灯”遭遇死水困局
自贡彩灯博物馆作为中国唯一彩灯文化专题博物馆、国家级非遗“自贡灯会”传承基地,年均接待游客超300万人次。其正门广场喷泉是核心景观节点,但改造前存在三大痛点:
功能瘫痪:
排水溢水管阀门老化,水池无法放空清洁,沦为“死水潭”
设备报废:
原水景系统瘫痪超3年,喷泉已沦为摆设
体验缺失:
夜间漆黑一片,与璀璨的“灯会文化”格格不入
2023年底,博物馆启动基础设施“微改造”工程,喷泉修复成为提升城市形象和游客体验的核心突破口

自贡彩灯博物馆水景喷泉修复前现场实拍
二、设计理念:以水为媒,重构“灯水共生”场景
文化赋能,灯水共舞
灯会符号转译:喷泉水型设计呼应彩灯造型语言——如圆形阵列喷泉象征宫灯轮廓,涌泉模拟烛光跃动,让水型成为彩灯艺术的动态延伸
非遗工艺赋能:采用316不锈钢喷头(耐腐蚀性比304提升30%),致敬自贡彩灯传统制作中的金属工艺精髓
智慧运维,省心省钱
闭环水系统:引入自清洁过滤装置,实现水体循环利用,较传统喷泉节水40%,告别频繁换水烦恼
模块化结构:喷头、水泵采用快拆设计,维护效率提升30%,大幅降低后期人力和时间成本

自贡彩灯博物馆水景喷泉效果图
三、技术方案:四层水景舞台演绎非遗新魅力
分层水景设计解析

自贡彩灯博物馆水景喷泉设备物料CAD索引平面图
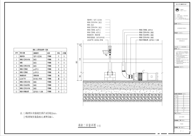
第一层·安全韵律
11组涌泉喷头:沿凵形池壁构建律动基线
8组蘑菇喷头:7m直线阵列形成迎宾水幕
设计逻辑:通过矮喷建立安全视觉屏障,夜间搭配LED灯光模拟灯会底座“烛台火光”

自贡彩灯博物馆蘑菇CAD安装详图
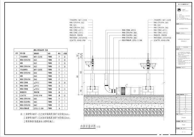
第二层·几何美学
20组万向直流喷头:直径3m圆形阵列,抛角15°向内聚合,演绎“宫灯骨架”几何美学

自贡彩灯博物馆内拱CAD安装详图
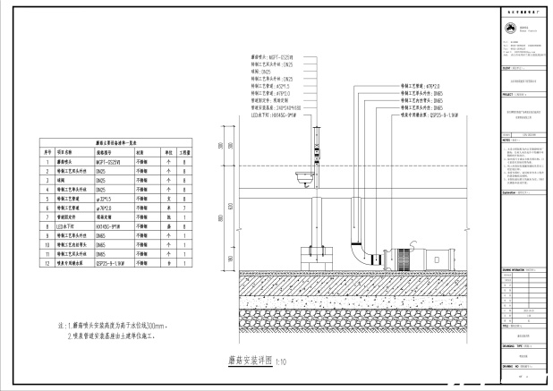
第三层·历史回响
8组涌泉喷头:喷射高度0.3-0.5m(动态可调),变频控制水流缓急,隐喻自贡盐井涌泉的千年律动

自贡彩灯博物馆涌泉CAD安装详图
第四层·地标之冠
DN50集束喷头:中心主喷(原三翻花改造),垂直射流最大可达6m高度,象征“天下第一灯”核心地位
注:第四层喷头因现场树木遮挡问题,将原设计中三翻花喷头改为定向集束喷头,避免水流溅洒

自贡彩灯博物馆三翻花CAD安装详图
耐用性系统工程
| 组件 | 材质标准 | 寿命周期 | 特殊工艺 |
| 水泵机组 | 304不锈钢 | ≥8年 | 全配件304不锈钢 |
| 喷头阵列 | 316不锈钢 | ≥10年 | 激光切割一体成型 |
| 管道系统 | 304不锈钢 | ≥15年 | 氩弧焊无缝连接 |
| 控制阀门 | 316不锈钢 | ≥12年 | 真空镀膜防腐 |

自贡彩灯博物馆水景喷泉控制流程图
四、改造成果:小投入撬动大回报,文旅升级典范
文化记忆重生
改造后喷泉成为夜间引流核心,水柱与博物馆宫灯建筑群交相辉映,强化自贡“南国灯城”的城市标签
游客体验升级
市民反馈“公园夜晚更亮了,散步健身更方便”,元旦期间单日客流峰值达1.2万人次
文化传播赋能
喷泉与彩灯艺术形成立体展示窗口,助力博物馆获评“四川省研学实践基地”
经济效益转化
周边酒店入住率因夜游经济带动增长25%,区域商业活力显著提升
长效运维突破
316不锈钢材质抵御川南高湿高盐空气,设备故障率下降70%
模块化设计使喷泉设备更换时间从2小时缩短至15分钟,运维成本大幅压缩

自贡彩灯博物馆水景喷泉侧面实拍
五、行业启示:文旅水景设计的3大趋势
文化转译公式:
地域符号×智能水景=沉浸式文化体验(如喷泉阵列演绎宫灯骨架)
生态技术标配:
闭环水系统+高效低耗设备,已成为文旅项目可持续发展的准入门槛
可参与性设计:
未来可增设感应式互动喷泉(如踏步触控水型),让游客从“看客”变“玩家”,有效延长停留时间

自贡彩灯博物馆水景喷泉正面实拍
您的文化地标,值得更专业的水景方案!
自贡彩灯博物馆的焕新证明:精准、专业的改造,能以小博大,让老水景焕发新价值!
立即行动,解锁您的项目潜力!
喷泉设备选型清单
智能控制系统配置
水景维护成本测算
建设方最关心的Q&A
Q:老喷泉改造必须重建水池吗?
A:本案例证明,通过专业深化设计可在保留原结构基础上实现功能升级,关键在精准的设备选型与管道优化。
Q:不锈钢喷泉设备是否值得投入?
A:以10年周期计算,304/316不锈钢系统综合成本比普通材质低41%,且避免停运维修导致的客流量损失。
Q:喷泉改造为何弃用三翻花喷头?
A:因现场树木枝叶侵入喷射范围,水雾溅洒导致植物受损。DN50集束喷头定向喷射,在保留视觉冲击力的同时规避了生态干扰。
Q:高湿地区如何预防喷泉设备腐蚀?
A:执行CJT209-2016标准,核心部件采用316不锈钢(含钼元素抗盐蚀),线缆接头IP68防护,管道内外壁纳米涂层处理。

自贡彩灯博物馆水景喷泉水池管道预埋CAD平面图


