静谧庭院·光韵流动 - 四川资中私人别墅庭院水景与花园亮化工程:如何用艺术水景与光影提升高端生活品质?
一、项目背景:高端生活诉求下的庭院升级需求
客户定位:
四川资中某高端私人别墅业主,追求高雅艺术氛围与自然生态融合的居住体验
核心痛点:
庭院空间利用率低,缺乏动态景观焦点
夜间花园照明不足,无法展现植被层次
传统水景能耗高、维护复杂,需兼顾安全与美观
解决方案:
“艺术水环”点睛:不再是死水一潭!环绕庭院打造流动活水,兼具美感与生态。
“光影魔法”加持:智能灯光点亮夜晚,喝茶、散步氛围感拉满,安全又浪漫。
“安全省心”是底线:低压供电、顶级防水、超低维护设计,彻底解决后顾之忧!

资中私人别墅水景及亮化施工现场俯瞰图
二、水景设计方案:动静结合的艺术水环
基础结构设计
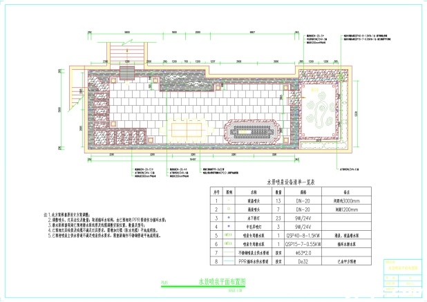
水池形态:沿庭院外围打造宽0.5m的闭合水道,总长度约48米,形成“庭院水环”效果
循环系统:采用低噪水泵(流量15m³/h),实现水体24小时流动,避免死水滋生蚊虫
水位管理:隐藏式溢流口+自动补水阀,维持水位稳定
核心水景元素
| 水型 | 数量 | 布局逻辑 | 功能价值 |
| 涌泉 | 7组 | 依托假山错落分布 | 模拟自然泉眼,增强立体感 |
| 玻晶 | 13组 | 间距3m沿池缘均匀排布 | 形成水晶帘效果,折射星光 |
关键技术保障
低压安全系统:所有潜水泵、水下灯具采用24V直流供电,杜绝漏电风险
防水保障:水景灯具IP68防护等级,可长期浸没运行
茶室光效联动:水池中设置水下射灯,向上投射茶室外墙,营造“波光映壁”的动态光影

资中私人别墅庭院水景喷泉CAD平面图
三、花园亮化方案:光影重构夜间庭院
功能性照明
24盏暖白庭院灯:沿步道形成“光引导线”,色温2700K营造温馨归家动线,保障夜间行走安全
景观性照明
20盏绿光射灯:采用窄光束角(15°)精准照亮大型乔木与造型灌木,绿光增强植物叶脉通透感,避免白光导致的苍白感
技术保障
所有户外灯具防水等级达IP65,适应四川多雨气候
分回路定时控制系统,景观模式(19:00-22:00)与节能模式(22:00后亮度50%)自动切换

资中私人别墅户外花园CAD亮化布置图
四、项目四大核心亮点
生态循环设计
闭环水系统减少补水需求,年节水率达30%
流动水体自然增氧,抑制藻类滋生
安全低压体系
全系统24V安全电压,尤其适合有儿童的家庭庭院
三级漏电保护装置(设备级+回路级+总控级)
光影艺术升级
水景光效(玻晶水膜+茶室墙面)与花园照明(植被绿光+步道暖光)形成立体光环境
通过明暗对比强化庭院景深,视觉扩大空间感
超低维护成本
潜水泵加装不锈钢过滤网,降低喷嘴堵塞风险
核心设备均采用模块化设计,损坏时可单点更换

资中私人别墅户外花园俯瞰图
五、实施成效与客户价值
| 维度 | 实施前状况 | 实施后成效 |
| 景观价值 | 静态庭院缺乏视觉焦点 | 动态水景+昼夜双景模式 |
| 使用频率 | 夜间基本无庭院活动 | 夜间户外停留时间提升200% |
| 维护成本 | 预估年维护费超5000元 | 实际年维护成本<2000元 |
| 业主反馈 | “庭院成为朋友到访必赏景点,尤其夜间水光效果惊艳” | |

资中私人别墅庭院水景喷泉施工现场
免费获取您的专属庭院升级方案!
打造理想私宅水景,牢记三大黄金法则:安全零隐患 · 效果可持续 · 维护极简化
限时福利!私宅业主提交庭院平面图,即可获得:
定制化水景方案(含3D效果图) - 提前预览您家庭院的美!
《私人别墅水景安全设计白皮书》 - 了解行业安全标准,避坑指南。
《适合本地气候的庭院光影植物搭配建议》 - 让灯光与绿植相得益彰!
立即行动,让您的庭院焕发新生!
📱 预约专线:136-6835-8696 (微信同号,添加咨询更便捷)
项目总结:“从资中案例可见:真正打动人心的艺术水景,是用专业技术实现人文关怀,让美融入生活,更让生活安心无忧。”
FAQ:别墅业主最关心的热点问答
Q:玻晶水膜是否容易积存落叶?
A:放心!设计时预留底部排污口,配合循环水流自动冲刷,每月启动1次强排模式即可。
Q:24V低压系统的喷泉效果会减弱吗?
A:不会!我们采用高能效直流泵+优化管道设计(管道损耗<5%),水型高度和效果与常规高压系统完全一致,安全与效果兼得!
Q:四川冬天水景怎么办?要排空吗?
A:水池深度>40cm(如本案),资中(极端-1℃)通常不需排空防冻。但为延长设备寿命,建议11月-2月关闭涌泉,玻晶水膜可低水位运行,更稳妥。
Q:绿光照射植物是否影响生长?
A:采用520-540nm波段绿光,为植物非光合作用吸收带,既展现植物夜间美感,又不干扰其自然节律。
Q:水景喷泉灯具能用多久?
A:在无机械损伤情况下,密封结构寿命≥5年,光源寿命20000小时(按每晚使用5小时计算,可用10年以上)。


