工业美学与生态科技的完美融合 - 重庆璧山众泰工业园水景喷泉设计方案
摘要:
本文以重庆璧山众泰工业园水景喷泉设计方案为例,系统阐述如何通过四维空间设计体系与生态交互技术,将工业园区的刚性空间转化为兼具美学价值与生态效益的“会呼吸的景观”,实现湿度提升15-20%、PM2.5浓度下降18%的微气候优化目标。
一、项目背景与核心挑战:现代工业园区的景观升级之需
随着中国制造业向高端化、智能化、绿色化转型,现代化工业园区的功能已远不止于生产制造。重庆众泰汽车工业园作为西南地区重要的汽车产业标杆,占地约1200亩,拥有超过3000名员工。
其核心办公区及公共空间的景观环境,不仅关乎企业形象,更直接影响到员工的工作满意度、创造力与留任率,乃至访客与合作伙伴的第一印象。园区管理层敏锐地意识到,传统的硬化广场与零星绿植已无法满足当代产业工人与白领对工作环境的人文与生态需求。
他们面临的核心痛点在于:
环境刚性过强:工业建筑与硬质铺装占主导,缺乏柔化视觉、舒缓压力的自然元素。
空间缺乏互动与活力:公共区域功能性单一,缺少能聚集人气、激发交流的景观焦点。
生态效益缺失:景观未能承担起改善微气候、促进可持续发展的角色。
品牌文化表达不足:园区景观未能有效传递企业“精密制造”与“人文关怀”并重的文化内核。

重庆璧山众泰工业园办公楼现场勘测
为此,我们受邀为其量身定制一套水景喷泉整体设计方案,目标是以水为媒介,实现“工业美学”与“生态科技”的完美融合,打造一个既彰显产业力量,又充满生机与智慧的园区景观系统。
二、 设计理念:“工业美学·生态赋能”的四维融合体系
基于深度调研,我们提出 “工业美学·生态赋能” 的核心理念。此理念旨在打破工业景观冰冷刻板的传统印象,通过水的灵动与科技的可控,达成以下四个维度的统一:
视觉维度:将汽车工业的精密、力量感(如流畅的车身线条、精密的零件阵列)转化为水景的构图语言。
功能维度:水景不仅是观赏对象,更是引导人流、调节环境、营造氛围的功能性设施。
生态维度:集成智能水循环与净化技术,使水景成为园区的“生态绿肺”,实现节水降耗、净化空气。
情感维度:通过可交互、可变化的景观,为员工创造休憩、交流、放松的情感归属地。
三、四维空间设计体系:从宏观布局到微观交互
1.建筑共生布局——黄金象限规划
轴向设计:基于园区主导风向与日照角度,在西、西南、南、东南四个方向设置水景带,使水幕与玻璃幕墙在不同时段折射动态光影,形成“晨曦彩虹-午后波光-夜间极光”的全天候视觉序列。
人流动线:通过15°倾角水幕墙引导访客流向,兼具空间分隔与导向功能,避免密集水雾影响主要通行区域。

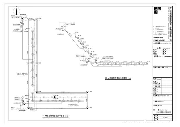
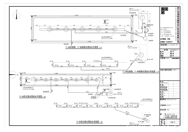
众泰工业园水景喷泉CAD系统图一
2.动态水型矩阵——层级化艺术表达
基础层(稳定脉动):采用鼓泡喷头组,喷射高度0.3-0.8米,孔径5-10mm,办公区近人尺度景观,营造静谧氛围。
韵律层(核心演绎):采用直流喷头组,通过PLC编程控制实现1.2-3.5米组合变化。日常模式简约运行,节庆或重要接待时,可进行更具表演性的动态展示。

重庆璧山众泰工业园办公楼鼓泡喷泉效果图
3.智慧光影系统——场景化氛围营造
灯光绝非简单照亮,而是情感的渲染器。我们设计了多场景联动的智能光影控制系统:
日常节能模式(8:00-18:00):以4000K中性光为主,精准勾勒水型轮廓,搭配水纹投影,低调中体现细节。
商务参观模式:启动RGBW全彩渐变系统,灯光色彩可与水型、背景音乐同步编程,演绎企业品牌故事。系统更可与建筑泛光照明联动,实现一体化的灯光秀。
员工休闲模式(午间、傍晚):启用柔和温暖的色调,配合舒缓的水型,营造放松惬意的氛围。

重庆璧山众泰工业园办公楼水柱喷泉效果图
4.生态交互系统——可持续技术内核
这是本方案的核心竞争力与长效价值所在。
智能水循环净化体系:所有水体均纳入封闭循环系统。采用“毛发收集→石英砂过滤→精密滤芯”三级过滤装置,并添加智能水质监测传感器,根据浊度、pH值自动启停过滤与投药系统。经测算,此系统比传统漫流水景节水率提升40%以上。
微气候智能调节:通过分布在泉组间的超细雾森系统,在夏季高温时段定时启动。数据显示,水景半径50米范围内,空气湿度可提升15-20%,体感温度下降3-5℃。同时,水雾能有效吸附空气中的悬浮颗粒,使局部PM2.5浓度下降约18%,打造真正的“洁净微环境”。
低噪运行保障:选用静音水泵机组,并通过减震基座、管道软连接、隔音材料包裹等工艺,确保最近建筑窗外噪声值低于45分贝,绝不干扰室内办公。

众泰工业园水景喷泉CAD系统图二
四、技术亮点:工业场景的专项创新
亮点提炼:
形神兼备的文化表达:水景不再是装饰,而是企业“刚柔并济、精密创新”文化的三维立体表达
全周期成本可控:模块化设计、智能运维系统大幅降低了后期能耗与维护成本,让水景“用得起、养得起”
沉浸式交互体验:改变了“只可远观”的传统,通过视觉、听觉、触觉乃至体感的多元交互,提升员工参与感与幸福感
绿色可持续标杆:将生态效益量化,为工业园区践行“双碳”目标、申请绿色建筑认证提供了实质性的景观支持
预期成效(基于模拟数据及类似项目经验):
品牌形象提升:打造区域性地标级工业景观,显著提升企业高端、人文、绿色的公众形象
员工满意度提升:创造吸引人的户外休息空间,预计可提升员工午间户外活动率,有助于缓解工作压力,增强团队凝聚力
环境效益显著:年节水量可观,局部微气候改善明显,助力园区ESG(环境、社会、治理)评级提升
资产价值增值:独特的景观体系成为园区软实力的一部分,提升了整体物业的价值与吸引力
五、 为什么选择我们:专业铸就信赖
面对专业、系统的水景工程,一个兼具艺术创意与工程实力的合作伙伴至关重要。
全周期服务体系,无缝衔接:
前期设计:我们提供免费的现场勘测、需求深度访谈及1:1实景效果图预览,让您在动工前即见成效。
中期施工:拥有经验丰富的专业施工团队,核心部件采用模块化预制组件,现场安装快速精准,预计可使整体工期缩短30%,最大限度减少对园区运营的干扰。
后期运维:搭载物联网远程监测模块,关键设备运行状态、水质数据一目了然。我们提供7x24小时应急响应服务及定期保养计划,能使您项目的长期运维成本降低约40%。
行业标杆资质与深厚积淀:
12年行业深耕,专注于复杂商业与工业水景领域,已成功为超过20家世界500强企业及大型公共机构提供水景解决方案,深谙大型项目的管理流程与品质把控要点。
结语:工业景观的生态化升级路径
重庆璧山众泰工业园水景方案证明,通过空间共生设计、动态水型矩阵、智慧控制与生态技术的四维整合,工业喷泉可从“装饰品”升级为环境调节器、品牌传播器与员工福祉提升器。这种“技术赋能美学”的模式,为制造业园区提供了一条可复制的绿色转型路径。
如果您正在思考:
如何让我们的产业园区或企业总部在同类中脱颖而出?
如何通过景观提升员工幸福感与企业文化认同?
如何投资一个既美观又智能、且长期成本可控的精品水景?
那么,这个融合了工业美学、智慧科技与生态哲学的设计思路,或许能为您带来启发。
【立即获取您的专属方案】
我们坚信,每一个项目都有其独特的灵魂。欢迎随时联系我们,获取:
免费现场勘测与概念提案:我们的专家团队将亲赴您的项目现场,提供初步设计思路。
《智慧工业水景应用白皮书》及经典案例库:了解更多行业趋势与成功实践。
预约沉浸式设计方案讲解:通过3D动画与VR实景,提前漫步于您未来的水景花园。

附:水景喷泉设计常见问题解答(FAQ)
Q:这样一个综合性水景喷泉工程,造价是否非常高昂?
A:造价取决于具体设计规模、选材和技术复杂度。我们的优势在于通过模块化设计、精准的流量计算和智能控制系统,在保证效果的同时优化初始投资。更重要的是,我们强调项目的全生命周期成本,高效的节能与运维方案能为客户节省大量长期开支。我们提供透明化的造价明细和多种分级方案供选择。
Q:方案中提到的节水40%是如何实现的?
A:主要通过三点:1.所有水景均为封闭循环系统,蒸发和风吹损耗是主要补水量,我们通过合理控制喷射高度来减少;2.智能水质监控系统能精准控制补水和排污,避免浪费;3.三级过滤系统保持水质长效清洁,减少整体换水频率。这些数据基于流体力学计算和已运营项目的实测均值。
Q:在工业园运行,如何保证水景的清洁和维护便利性?
A:首先,设计阶段就考虑了低维护性:如选用不易结垢的优质喷头、管道预留清洗接口、设置便捷的排水坡道。其次,智能运维平台是关键,它能实时监测水质和设备状态,实现预测性维护,大部分问题在变成故障前就已解决。最后,我们提供详细的运维手册和培训,并可根据合同提供长期的保养服务。
Q:水景的运行电费会不会很高?
A:节能是我们的核心设计原则之一。我们采用高效变频水泵,根据水型变化自动调节功率;灯光系统全部采用LED光源,并分场景分时段编程控制;智能控制系统可设置“平日”、“周末”、“节日”等多种能耗模式。通常,一个设计精良的智慧水景系统,其运行能耗远低于客户预估。
Q:从设计到最终完工,大概需要多长时间?
A:时间取决于项目复杂度和现场条件。一般而言,类似本案例规模的设计周期约为20-30个工作日,施工安装调试周期约为60-90个自然日。我们的模块化预制工艺能大幅缩短现场安装时间,并保证质量的一致性。我们会为每个项目制定详细的里程碑计划,确保进程可控。


