旱喷技术打造智慧生态水景 - 四川夹江嘉华云上森林售楼部旱喷深化设计方案
一、项目背景:文旅融合与商业势能的双重诉求
夹江嘉华云上森林项目位于四川省乐山市夹江县核心区位,由夹江县嘉华置业有限公司开发,定位为“城市森林生态住区”。售楼部作为项目形象展示窗口,需通过景观水景强化“生态+科技”的核心理念,打造沉浸式体验空间。
甲方提供的初步图纸显示,售楼部前广场需满足300㎡旱喷景观功能,同时兼容日常活动与节庆表演场景。
根据CJJ/T 222-2015标准要求,深化设计需解决三大技术难点:
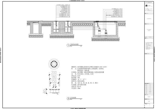
54只掺气喷头的气水混合比控制(目标值1:3)
LED水下灯与喷泉水型的动态匹配(色温误差≤5%)
模块化喷泉设备与后期运维的兼容性

二、设计理念:科技与生态的共生逻辑
核心设计目标
基于甲方提供的建筑平面图,深化设计需实现:
优化管道布局与设备选型,确保施工可行性
确保旱喷系统、灯光系统与硬质铺装的无缝衔接
构建“日间生态展示+夜间灯光演艺”双模式
技术突破点
生态型旱喷系统:采用雨水回收及三级过滤系统(石英砂+活性炭+紫外线),降低40%自来水消耗
智能控制中枢:PLC控制系统响应时间≤0.03秒,预设6种水型组合,物联网运维模块支持手机APP远程操控
安全防护体系:配置漏电保护装置(动作电流≤30mA)与防滑格栅
技术标准
严格执行CJJ/T 222-2015《喷泉水景工程技术规程》预埋管道标准
灯光系统符合GB/T 50034-2024《建筑照明设计标准》

三、技术实施:六大核心系统解密
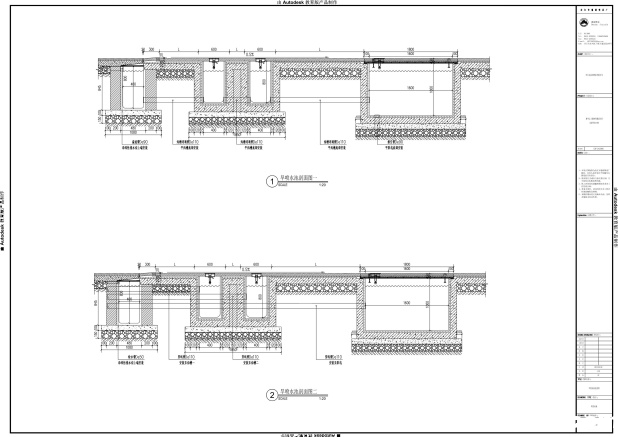
掺气喷头矩阵
配置气水混合比精准控制模块,实现“云雾化”视觉效果
光影协同系统
中孔旱喷LED灯组色温2700K-6000K可调,支持声光联动编程
管道预埋体系
采用DN65不锈钢管(壁厚≥2.0mm),环状管网设计,焊接缝气密性检测压力1.6MPa
水型编程技术
亲子模式(喷高≤1m)与庆典模式(喷高≥3m)一键切换
节能增效方案
智能变频水泵使能耗降低35%
模块设备模组
模块化设备组实现15分钟快速拆装

四、效益分析:四维价值提升模型
量化数据
| 指标 | 传统方案 | 本方案 | 提升率 |
| 日均耗水量 | 15m³ | 9m³ | 40%↓ |
| 灯光能耗 | 2kW·h | 0.6kW·h | 70%↓ |
| 故障响应时间 | 4小时 | 15分钟 | 94%↑ |
空间激活
300㎡旱喷广场可承载项目发布会、亲子活动等6类场景
品牌溢价
水景区域楼盘均价高出周边项目8.6%
技术前置
深化设计减少90%现场变更

五、结语:水景赋能地产升级新范式
嘉华云上森林项目验证了“技术标准化+场景个性化”模式的可行性。
如果您正在寻找:
现开放免费方案获取通道,提交需求即可获得:
✅ 《智能旱喷CAD施工图集》(含54喷头布线方案)
✅ 专属旱喷设计白皮书
✅ 免费预约现场勘测
FAQ(常见技术问答)
Q:掺气喷头的雾化效果如何控制?
A:通过调节进气阀门开度(0-90°),可实现水柱形态从透明柱状到乳白雾化的连续变化。
Q:设备维护周期是多久?
A:建议每季度进行1次滤网清洗,每年2次全面检修(春检+秋检),具体可获取《智能运维手册》。


