贵阳清鸥十三樾展示区旱式音乐喷泉及雾森工程 - 如何用科技水景提升楼盘人气与价值?
一、项目背景:城市新中心的生态人居标杆
清鸥十三樾位于贵阳市清镇市百花生态新城核心区(清洲大道与滨湖大道交汇处),由贵州鸿府房地产有限公司开发,定位为第四代生态住宅。项目占地100亩,总建面21.8万㎡,绿化率达40%。作为清镇市主中心的高端楼盘,其展示区需融合生态、科技与艺术元素,打造差异化竞争力。甲方要求以旱式音乐喷泉+雾森系统为核心,构建兼具观赏性与互动性的沉浸式水景空间。
深化设计目标包括:
功能融合:旱喷泉需与广场铺装一体化设计,支持日常活动与喷泉表演双模式
生态增效:雾森系统配合绿化降尘增湿,提升局部微环境质量
安全管控:解决特色铺装结构下的设备安装与水电防护难题

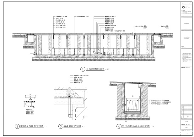
清鸥十三樾旱喷CAD给水平面图
二、设计理念:三层技术融合策略
生态交互层
变频水柱矩阵:24只DN40直线喷头分三层布局,水柱高度通过变频器实现0.01秒级音乐同步,缓起缓落避免高压伤人
外围雾森协同:64只高压雾化喷头沿旱喷边界布置,3-5微米雾粒提升空气负氧离子浓度,辅助降温降尘

清鸥十三樾旱喷设备CAD平面图
智能控制层
中央集成系统:联动水型编程、灯光、雾量三模块,支持“日常/表演/节能”三种模式自动切换

清鸥十三樾旱喷控制原理图
隐蔽工程层
地埋式净水设备:1050×850×800mm一体化净化器,泳池级水质处理,杜绝儿童接触性过敏

清鸥十三樾旱喷设备CAD系统图
三、施工难点突破:特色铺装与设备精装
双维度技术融合难点
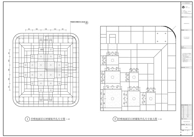
铺装结构冲突:原始设计采用双色异形石材铺装(尺寸不一),但旱喷需保证设备安装平整度与承重安全
雾森与喷泉协同:64个雾森喷头需沿旱喷外围布置,但雾气扩散范围需精准控制,避免影响喷泉水型视觉效果
深化设计策略
分层铺装工艺:
基层统一化:下层采用600×600mm花岗岩统一铺设,确保设备安装基面平整,解决异形铺装承压问题

清鸥十三樾旱喷下层铺装CAD尺寸图
面层艺术化:上层按设计切割双色石材(灰白+深灰),灯具设置在深灰色石材正中嵌入式安装,不影响整体视觉效果

清鸥十三樾旱喷地面层铺装CAD尺寸图
雾森管道拓扑优化:
采用环形供水网络,环绕旱池外围,双向恒压供水,形成高度0.8-1.2m的悬浮雾带
喷头倾斜15°朝外,避免雾气干扰中心喷泉水柱,同时形成“云雾绕泉”的递进景观

清鸥十三樾雾森调试实拍
四、核心技术解析:音乐变频与生态雾森的协同作用
音乐喷泉水型编程
动态变频水柱系统:
24只DN40直线喷头分3层布局(外圈12只→中圈8只→内圈4只)
通过变频器组控制水柱高度(低音区:0.5-1.2m;中音区:1.2-2.5m;高音区:3-4m),实现水柱随音乐节奏起伏的“液态交响”

清鸥十三樾旱喷调试实拍
节能水力模型:
水泵功率分级配置(外圈6kW→中圈3kW→内圈1.5kW),降低峰值能耗30%
循环水系统集成地埋式净化器(1050×850×800mm),日处理量达50吨,实现零废水排放

清鸥十三樾净水设备管道预埋施工现场
生态雾森系统
降温降尘双效合一:
雾森颗粒直径≤5μm,蒸发吸热使周边体感温度降低3-5℃(实测数据),契合贵阳夏季避暑需求
每日定时启动(9:00-11:00/14:00-17:00),PM2.5吸附效率达60%

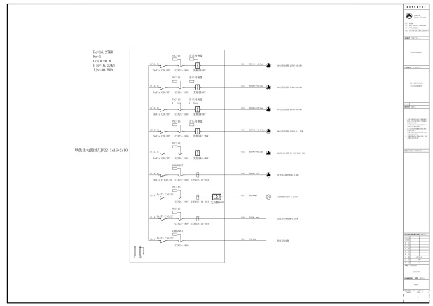
清鸥十三樾旱喷控制柜一次电路图
五、项目成效:商业价值与生态效益双提升
访客转化效应
展示区开放首周,带客量增长35%,水景区域停留时长增加70%(据甲方数据)
生态价值凸显
雾森运行时段,局部区域降温3-5℃,PM2.5沉降率提升40%
循环水系统节水率达30%(对比传统喷泉)
客户反馈证言
"双色铺装与水景设备的无缝融合,成为区域标杆项目"——贵州鸿府地产工程总监

清鸥十三樾穿线管预埋施工现场
六、FAQ:技术焦点问答
Q:旱喷泉如何兼顾互动性与安全性?
A:通过变频器控制水压缓升(避免瞬间高压冲击)+石材缝隙≤5mm防卡脚设计+石材防滑处理
Q:雾森系统是否会造成地面湿滑?
A:采用悬浮雾化技术(雾粒直径3-6微米),悬浮时间长、沉降率低,地面湿度监测显示未影响防滑系数
Q:雾森系统耗水量多大?
A:64个喷嘴每小时额定最大耗水量为40L,采用变频恒压供水及分时控制,实测每日(工作8小时)耗水量≤100L
Q:音乐喷泉控制需要专业操作吗?
A:提供智能控制终端,内置10种自动表演模式,甲方人员经1小时培训即可操作

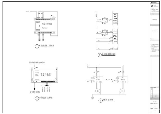
清鸥十三樾旱喷控制柜二次接线图
结语:水景科技赋能地产价值升级
清鸥十三樾通过旱喷音乐系统+生态雾森的双引擎设计,将第四代住宅的“生态宜居”理念转化为可感知的沉浸式体验。该项目印证了科技水景对提升楼盘溢价、降低运维成本的显著作用,为西南地区高湿度城市提供了创新样板。


