生态修复项目如何通过定制化雾森系统提升景观效果? - 重庆跳磴河“清水绿岸”项目华岩湖&仙女洞雾森工程
一、项目背景:生态痛点与转型机遇
跳磴河的治理挑战
跳磴河作为长江一级支流,曾因工业污水、生活废水直排沦为黑臭水体(水质劣Ⅴ类),虽经两期治理后达Ⅳ类水质,但景观单一、亲水体验弱、夏季高温导致滨河空间利用率低
政策与需求双驱动
政策要求:根据《重庆市“清水绿岸”治理提升三年行动计划》,大渡口区跳磴河“清水绿岸”治理提升项目明确“水生态修复+亲水空间活化”双重目标
市场需求:周边居民对“可游、可玩、可赏”滨水景观的需求激增,华岩湖(水域面积12.8公顷)与仙女洞(市级文物保护区)作为核心节点,亟需差异化景观赋能
甲方核心诉求
重庆建桥实业发展有限公司要求通过水景技术手段,实现“仙雾缭绕”的生态视觉效果,且需规避传统喷泉的电力负荷与维护成本问题,雾森系统因零积水、低能耗、强适配性成为首选方案

重庆跳磴河雾森效果实拍
二、设计理念:雾森系统的生态与美学融合
核心设计策略
以雾森系统为媒介,通过“降温增湿、负氧离子释放、动态造景”三大功能,实现:
生态修复延伸:通过雾森系统增加空气湿度,降低地表温度,吸附PM2.5,提升局部空气质量
文化场景活化:仙女洞桥体雾霭还原“夜郎烟雨”古驿意境,华岩湖假山雾帘打造“山水秘境”
低碳运维策略:变频恒压主机+精密过滤,降低能耗与水质依赖
景观融合逻辑
设备隐蔽化:98%管道埋地/嵌入构筑物
假山褶皱区:增强层次感
绿植边缘处:模拟自然晨雾
水域交界带:制造水面蒸腾效果

重庆跳磴河雾森设备安装现场
三、技术实施:精密设备与差异化场景施工方案
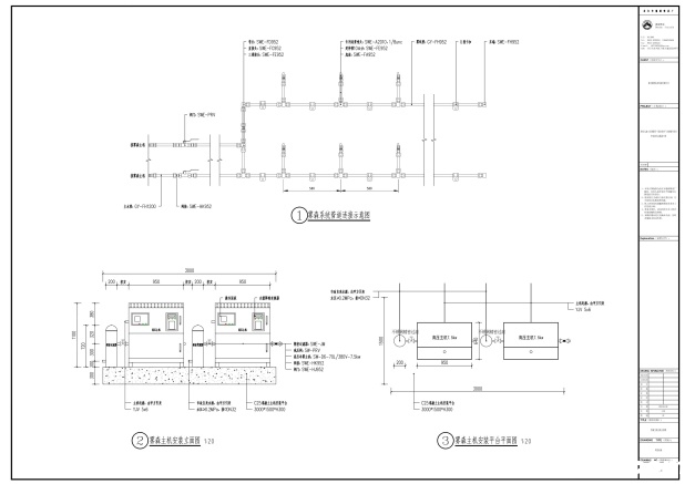
关键技术配置优化
| 区域 | 主机参数 | 管道系统 | 喷头部署方案 |
| 华岩湖 | 流量70L/min,功率7.5KW | φ12加厚不锈钢260米双回路 | 510只304不锈钢喷头 |
| 仙女洞桥体 | 流量40L/min,功率4KW | φ12加厚不锈钢160米双回路 | 318只嵌入桥底安装 |
核心设备优势
3T精密过滤器:双级过滤(精滤器+熔喷滤芯)确保喷雾水质达景观用水标准
双回路恒压供水:保障压力稳定,末端喷头压力误差±0.2MPa,雾粒直径≤10μm

雾森主机原理图
华岩湖雾森系统——山地水岸的立体适配

华岩湖雾森设备CAD平面布局图
| 安装位置 | 管道处理方案 | 固定方式 | 雾效目标 |
| 假山旁 | 埋地50mm+延伸管露地50mm | U型卡扣锚固山石缝隙 | 营造山间云涌效果 |
| 绿植带 | 埋地50mm+延伸管露地50mm | U型卡扣锁定硬化边缘 | 模拟植物蒸腾作用 |
| 水域内 | 低于压顶50mm暗敷 | U型卡扣固定水池基石 | 水面低空云雾融合 |
| 水陆交界带 | 埋地100mm+延伸管露地100mm | 喷头朝向水域倾斜15° | 增强水体朦胧意境 |

华岩湖雾森喷头CAD安装系统图
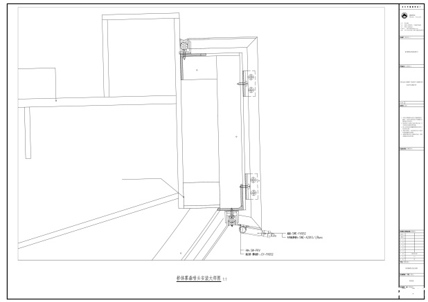
仙女洞雾森系统——桥体隐匿式集成

仙女洞雾森设备CAD平面布局图
所有管道嵌入桥体钢结构底部,318只喷头横向间距500mm,通过U型卡扣倒装于桥底,实现:
零视觉干扰:行人视角完全隐蔽
立体环绕雾效:雾气自下而上萦绕桥体
抗风稳定性:双回路设计抵御峡谷风扰动

仙女洞雾森喷头CAD安装系统图
四、实施成效:经济与生态双收益
生态效益数据
雾森日均运行8小时,空气湿度提升15%,周边新栽苗木成活率达98%
夏季降温5-8℃,高温时段游客停留时长提升40%(对比非雾森段)
社会经济效益
草海湾芦苇荡、仙女洞雾幕成抖音热门取景地,单日峰值客流破万
跳磴河沿线客流量提升40%,带动周边商业体周末营业额增长18.7%
智慧运维创新
主机变频技术+精准分区控制,较传统系统节能33%
智能控制系统实时监测水质/流量/设备状态,故障响应<15分钟
行业标杆价值
“该项目证明雾森技术可成为城市更新中的‘生态粘合剂’——重庆建桥实业项目负责人

雾森管道安装固定
五、FAQ高频疑问解答
Q:雾森系统是否加剧水资源消耗?
A:华岩湖雾森主机采用变频技术控制,日均运行8小时,耗水仅2.57吨。
Q:雾森系统是否会造成地面湿滑?
A:本工程采用粒径控制技术(5-10μm),雾气在落地前已完全蒸发。
Q:雾量能否智能调节?
A:主机内置PID控制系统,根据压力自动匹配输出频率(调节精度1Hz)。

雾森管道及主机CAD安装系统图
六、行业应用启示
生态修复:雾森系统可实现“零水体扰动式”景观升级
文化景区:隐蔽安装技术完美适配文物保护区改造限制
市政工程:双回路系统保障公共空间持续运行可靠性


