科技赋能自然意境的商业价值跃升 - 勐拉三森安合御府售楼部水景喷泉深化设计
一、项目背景:高端楼盘售楼部的水景赋能需求
勐拉三森安合御府定位高端文旅地产标杆,开发商三合投资要求售楼部通过动态水景艺术强化“自然意境+现代科技”融合体验,提升客户停留时长与签约转化率。本项目需基于效果图与CAD土建图完成水景喷泉深化设计,核心需求在于:
土建预埋优化
基于原始CAD图纸,精准调整泵坑、水池、沟槽尺寸,预埋给排水管、穿线管等各类管道系统,确保设备隐蔽性与施工可行性
设备安装指导
提供波光泉、涌泉、水帘喷头的安装系统图,指导甲方自主完成设备调试,降低外包成本

三森安合御府售楼部水景喷泉效果图
二、水景系统深化设计解析
双层镜面跌水池——自然韵律与科技隐形的融合
结构优化:
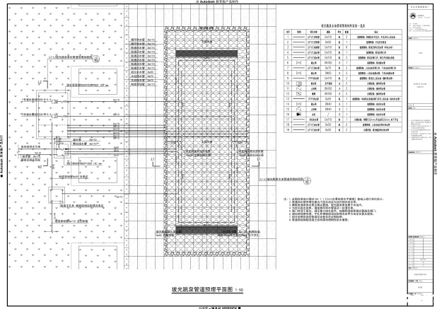
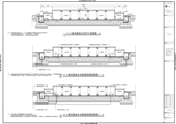
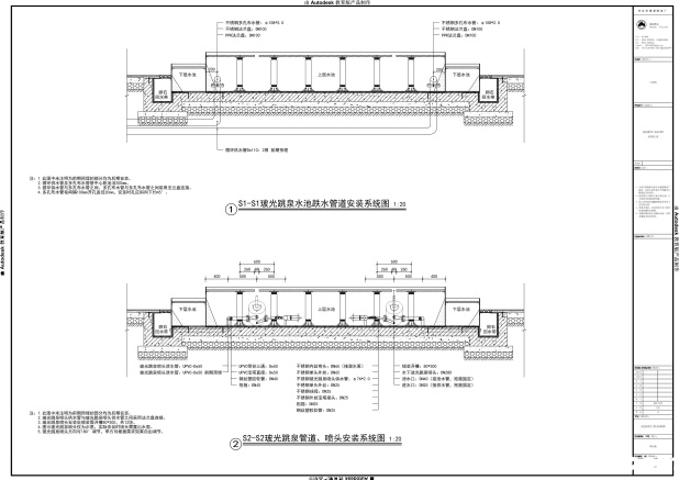
上层水池(12.6m×4.2m):采用黑色花岗岩镜水面,边缘跌水口设计为阶梯式导流槽实现薄而均匀的自然跌水效果,隐蔽安装12组跨度1.8m的水下波光泉喷头,通过304不锈钢定制支架固定,确保水线平滑稳定
下层水池(15m×5.4m):静面水跌入卵石回水带,深化泵坑尺寸(3m×2m×0.8m)并增设双回路循环系统(设计流量400m³/h),避免水流外溅

玻光跳泉管道预埋平面图
节水设计:封闭式水循环+卵石回水带过滤,水资源复用率>95%

玻光跳泉管道预埋剖面图
涌泉水池阵列——仪式感与低耗运维的平衡
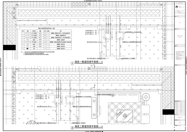
设备配置:两侧各设8组DN25涌泉喷头,喷高0.8m、直径0.5m,间距1.8m
管道预埋:不锈钢供水管(φ76*2.0)对称布局,安装深度≥35cm,保障水压均衡;溢流管与排水管分层预埋,坡度≥3%防积水
安全细节:水池采用架空层铺装,蓄水深度仅5cm,池壁石材防滑处理,供电设备24V安全电压

涌泉管道预埋平面图
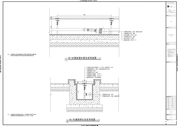
穹顶拉线水帘——文化符号的现代转译
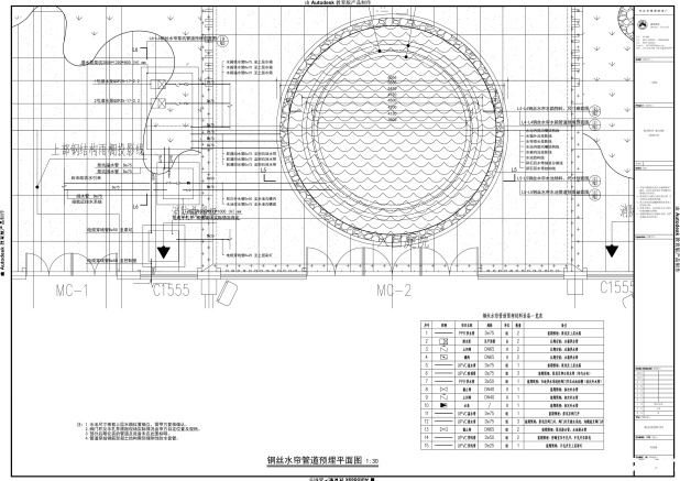
水帘结构:301个M10不锈钢水帘喷头圆形分布(直径4.2m),下方设镜面水池(直径5.5m)承接跌水
精准控制:环形供水管网+压力补偿装置,通过CFD流体模拟优化水流速,水帘均匀度误差<5%
隐蔽工程:下方沟槽隐藏水泵及彩灯系统,表面镜面水池采用防滑蚀刻玻璃,兼具安全与视觉效果

钢丝水帘管道预埋平面图
三、技术难点与创新突破
隐蔽工程精准协同
隐形动态水景:上层跌水池隐蔽安装12组水下波光泉,水面保持完整镜面效果,启动时瞬间形成跨度1.8m的水晶柱,关闭后无设备外露
泵坑尺寸优化:将原设计泵坑尺寸优化为3m×2m×0.8m,增加检修口(600×600mm),以满足大流量跌水池蓄水需求
管道预埋分层:给水管、排水管、电缆管分三层预埋,水景供水管采用PE材质(暗埋部分)+不锈钢(裸露部分),同时满足防腐寿命与精准定位要求

三森安合御府售楼部水下波光泉喷头样品
水压平衡与节水控制
跌水系统配置恒压供水装置,采用双回路环形供水管布局,安装于铺装下层,保障均匀供水的同时无肉眼可见水流涌动
全场景采用中央控制系统,分时运行模式(售楼时段全开/夜间节能模式),降低30%运维成本

玻光跳泉管道、喷头安装系统图
沉浸式空间叙事
| 区域 | 水景形态 | 客户体验价值 |
| 入口 | 镜面跌水+波光泉 | 科技感形象展示 |
| 动线两侧 | 矩阵涌泉 | 引导客户流向 |
| 洽谈区核心 | 镜面跌水+环形水帘 | 创造私密洽谈空间 |

钢丝水帘安装系统图
四、实施成效与数据反馈
施工效率提升
土建及预埋图纸深化,精确标注预埋位置于CAD图中,指导甲方预埋阶段避免交叉冲突,预埋管道零返工
水景安装系统图深化,严格按照《水景喷泉工程技术规程》,避免施工风险,使设备安装周期缩短至14天(行业平均20天)

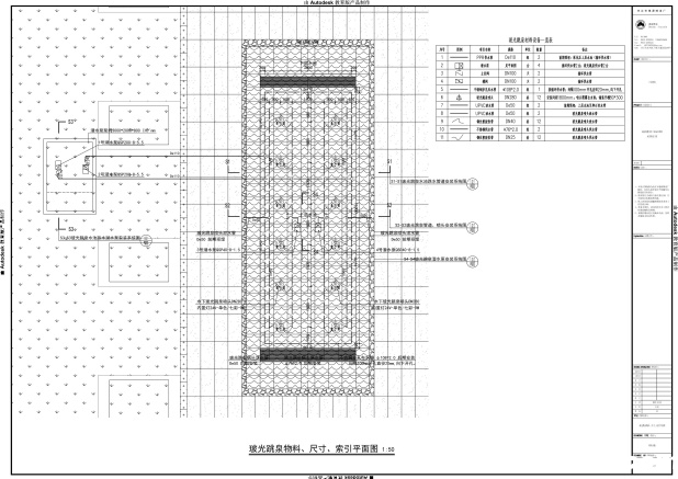
玻光跳泉物料、尺寸、索引平面图
商业溢价数据
开放首周水景区客户停留时长提升50%,签约转化率增长18%,客户提及“水景品质”为决策第三大因素
镜面跌水池与拉线水帘成为社交媒体打卡热点,水景区客户拍照分享率占项目总传播量的68%
FAQ:建设方高频技术问答
Q:售楼部水景如何平衡白天静谧与夜间吸引力?
A:采用“双模式运行”:日间镜面水模式(仅保留跌水系统),夜间启动波光泉+水帘灯光秀,功耗比传统音乐喷泉低40%。
Q:水帘装置如何解决水流不均匀问题?
A:三重保障:预埋时激光水平校准+恒压供水系统(压力波动≤0.01MPa)+导流板分流设计。
Q:甲方自行安装如何保障设备安装精度?
A:深化系统图提供详细安装坐标和步骤,关键节点附视频教程指导

涌泉安装系统图
结语:水景赋能地产价值的科技蓝本
勐拉三森安合御府项目通过“自然跌水+科技波光泉+环廊水帘” 三重意境,以深化设计打通土建与设备安装壁垒,实现“静谧中见科技、细节处显安全”的全龄化场景体验。


