220mm超窄设备槽旱喷技术破局 - 四川绵阳华禧首座北门新天地音乐喷泉工程
导语:
470毫米超浅设备槽 + 220毫米极限宽度,一套让传统水景公司望而却舟的场地条件下,数码跑泉却随乐起舞直冲4米高空。
四川绵阳三台县华禧首座北门新天地商业广场入口处,旱式音乐喷泉已成为亲子戏水、青年打卡的流量引擎。但在亮眼数据背后,是一场地与设备、设计与施工的极限博弈。
一、项目背景:商业入口水景的流量转化密码
项目定位:
华禧首座北门新天地商业广场作为绵阳市梓盛房地产开发有限责任公司在三台县打造的核心商业综合体,其北门主入口是吸引客流、塑造高端商业形象的关键界面。
甲方诉求:
梓盛地产要求在入口广场区域,基于原有土建条件与初步效果图,打造一处兼具视觉吸引力、互动体验感与现代科技感的旱式音乐喷泉。
核心目标在于:
提升广场人气与商业氛围,成为“引流磁石”
增强项目辨识度与品牌价值
确保在有限空间和苛刻的土建条件下实现稳定、高效、节水的运行

绵阳华禧首座北门新天地音乐喷泉甲供概念效果图
二、深化设计:从图纸到落地的精准“翻译”与优化
承接甲方提供的原始效果图及土建施工图后,我们的核心任务在于专业深化设计与施工可行性落地,涵盖三大专业领域:

绵阳华禧首座北门新天地音乐喷泉CAD图纸目录
喷泉园施深化(指导土建):
对涉及旱喷的水池结构、泵坑结构、给排水、穿线管预埋、音柱安装、配电室基础等9张图纸进行深度校核与优化
关键调整:修正原设计中多处不利于现场施工的细节,明确预埋件定位、管线走向与接口要求,确保土建施工一次性到位,为水景设备安装奠定坚实基础

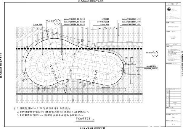
绵阳华禧首座北门新天地音乐喷泉CAD平面图
喷泉水施深化(核心优化):
出具旱喷平面布局图、喷头/灯具/潜水泵安装详图等3张核心图纸
核心破局点 - 喷头布局革命:
原方案痛点:喷头间距不统一,位置偏移铺装中心,导致现场定位困难、开孔随意,严重影响美观性与水型效果
深化方案:对喷头位置进行毫米级精密计算与重新定位,确保所有喷头严格位于铺装石材中心,间距统一规范。提供精确开孔模板,彻底解决定位难题,保障最终效果的规整与完美

绵阳华禧首座北门新天地音乐喷泉设备CAD系统图
喷泉电施深化(智能控制):
完成包含设计说明、控制流程、配电柜系统图、控制电路图、原理图、接线图等6张图纸
构建安全、可靠、智能的音乐喷泉电气控制系统,为变频数码跑泉的精彩演绎提供“神经中枢”

绵阳华禧首座北门新天地音乐喷泉控制流程图
三、技术亮点与难点破局:在220mm窄槽中“舞动”的智慧
本项目最大的挑战源于极其苛刻的现场设备安装条件和原方案的局限性。我们的深化设计与施工方案实现了关键性突破:
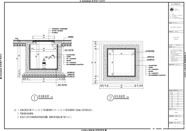
【破局点1】超窄设备槽(470mm深 x 220mm宽)的管道安装革命:
原方案困境:
计划采用管道预埋。但槽深仅470mm,宽度仅220mm,预埋后焊接空间为零,无法进行后续设备连接与维护
破局方案:
果断放弃预埋,采用“沟槽连通”策略。在设备槽(内圈、中圈)与泵坑之间精密开挖专用连通沟槽,所有管道通过沟槽进入宽敞的泵坑进行焊接、组装、测试。成功化解了空间死局,保障了施工质量与后期可维护性

绵阳华禧首座北门新天地音乐喷泉水池结构CAD平面图
【破局点2】蓄水量不足的节水型系统设计:
原方案风险:
水池浅、泵坑小,总蓄水量不足以支撑喷泉循环,将导致运行时频繁补水,造成水资源大量浪费(溢流损失)和运行成本飙升
破局方案:
“双系统蓄水”优化:调整溢水管设计高度,使旱喷水池与泵坑同时作为蓄水容器,最大化利用有限空间存储循环水
精确水力计算:确保系统总蓄水量严格满足单次运行所需循环水量,彻底消除频繁补水溢水问题,实现高效节水运行

绵阳华禧首座北门新天地音乐喷泉泵坑CAD系统图
【破局点3】复杂形状与窄槽下的管道精准适配:
挑战:
喷泉管道仅28米长,却由9段不同弧度的弧线组成,且必须在220mm宽的狭窄设备槽内严丝合缝安装,而土建施工可能存在误差
破局方案:
采用“初加工+现场精细组装” 模式
工厂根据图纸对管道进行高精度预弯和初切割
现场根据实际土建成型尺寸,进行精细测量、切割、打磨与组装,如同定制高级礼服般,确保每一段管道完美契合复杂弧线和有限空间,克服了土建误差影响

绵阳华禧首座北门新天地音乐喷泉三维动画截图(正面)
【亮点升级】水型艺术化与智能化升级:
原方案局限:
仅标注三圈均为“直线水柱”,缺乏层次感与变化,音乐控制概念模糊
深化方案:
梯次高度设计:外圈(16只,Max 2米)、中圈(13只,Max 3米)、内圈(4只,Max 4米),形成错落有致的视觉层次
变频数码跑泉:所有喷头均采用高性能变频数码跑泉喷头
智能音乐联动:通过精密电磁阀控制与专业音乐编程,实现水柱高度、起落速度、组合造型精准跟随音乐节奏与旋律变化,打造真正灵动震撼的“音乐跑泉”效果,远超甲方最初期待的简单水柱

绵阳华禧首座北门新天地音乐喷泉三维动画截图(背面)
四、运营成效:商业价值与技术口碑双赢
完美落地:
在极其苛刻的土建条件下,通过深化设计的精准指导和施工环节的创新突破,项目高质量按期交付,完全实现甚至超越了预期效果图
商业活力显著提升:
北门入口的旱式音乐喷泉迅速成为三台县新晋“网红打卡点”和商业引流引擎。其随音乐律动的数码跑泉景观,显著提升了广场人气、顾客驻留时间及商业氛围,获得甲方梓盛地产及商户高度赞誉
稳定高效运行:
优化的节水系统设计杜绝了水资源浪费,降低了运营成本。可靠的电气控制与高品质设备保障了长期稳定运行,维护便捷
技术标杆意义:
该项目成功解决了超浅设备槽安装、复杂微地形适配、极小空间高效蓄水等多项行业技术难题,为类似空间受限的商业广场入口喷泉项目提供了宝贵的“毫米级”深化设计与施工经验

绵阳华禧首座北门新天地音乐喷泉现场实景
五、FAQ:聚焦商业广场旱喷核心技术要点
Q:设备安装槽深度不足怎么办?
A:华禧首座案例证明,放弃预埋,采用精密沟槽连通至泵坑进行安装是可行方案。关键在于前期精准测量、沟槽设计及泵坑空间利用。
Q:如何避免喷头定位不准影响美观?
A:深化设计阶段必须进行铺装中心点的毫米级定位计算,提供精确的开孔定位模板指导施工,确保万无一失。
Q:小型旱喷如何解决蓄水量不足和节水问题?
A:最大化利用水池和泵坑双系统蓄水,并精确计算调整溢流水位是核心。专业的水力计算至关重要。
Q:音乐喷泉如何实现水柱高低变化?
A:采用变频控制潜水泵结合高速响应电磁阀是关键。通过控制系统调节水泵转速和电磁阀的快速启闭,配合音乐编程,即可实现水柱高度的精准、灵动变化。
Q:复杂形状喷泉管道如何保证安装精度?
A:“工厂预加工+现场精细适配组装” 是应对土建误差和复杂弧线的有效方法,要求团队具备高超的现场放样与施工技艺。

绵阳华禧首座北门新天地音乐喷泉现场实拍
结语:以专业深化设计,激活商业空间水景价值
华禧首座北门新天地音乐喷泉项目的成功,是精准的深化设计能力与灵活创新的施工技术在严苛条件下的一次完美融合。它证明了,通过“深化设计精准化、结构设计模块化、控制响应智能化”,即使在220mm超窄空间内,也能通过科学规划和精湛工艺,打造出兼具艺术美感、互动体验与商业价值的标杆水景。
梓盛地产的选择,是对专业价值的认可。您是否也希望在商业入口、城市广场或文旅项目中,拥有一处克服空间限制、引爆人气的智能水景?
立即行动,获取专属商业价值提升方案!
免费获取《商业空间节水型智能喷泉设计指南》:揭秘浅槽安装、精准定位、节水系统等核心技术要点!
预约资深水景工程师现场勘测:为您项目的独特场地条件量身定制最优解。
索取更多“空间破局”型喷泉工程案例库:汲取成功经验,启发项目灵感。


